| NIVEAU | PIÈCE | SURFACE |
- Ref 38039291
- Ref 288
- Type Maison de village
- Ville MONTALIEU VERCIEU
- Pièces 3
- Chambres 2
- Surface 70 m²
- Terrain 52 m²
- Prix :
99 000 € *
EXCLUSIVITÉ ANTONELLI IMMO,
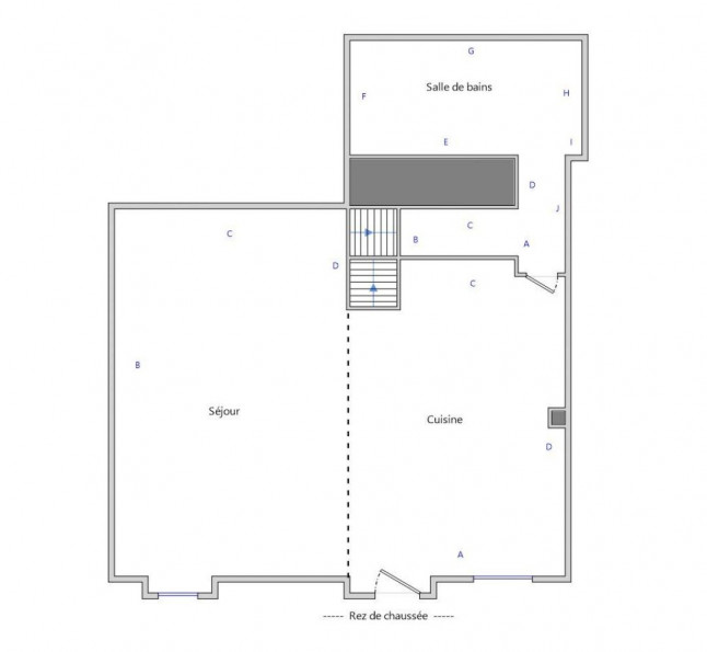
Maison de village de 70 m² habitables cadastrée sur 52 m².
Elle est se compose pour la partie RDC : entrée, cuisine aménagée ouverte sur le séjour et salle de bains avec WC.
A l'étage : 2 chambres.
Combles aménageables de 30 m² carrez exploitables.
Chauffage : radiateur électriques, fenêtres PVC double vitrage, ...
De plus, une cave de 32 m².
Toit neuf.
Toutes les commodités à pied.
Le tout cadastré sur 52 m².
Contacter Laurent ANTONELLI
Les honoraires sont à la charge des vendeurs.
« Les informations sur les risques auxquels ce bien est exposé sont disponibles sur le site Géorisques : www.georisques.gouv.fr ».
Référence de l'annonce 38039291 / 288
Notre barème d'honoraires
* Honoraires charge vendeur.
Diagnostic de
Performance énergétique

Montant estimé des dépenses annuelles d'énergie pour un usage standard: entre 1 250,00€ et 1 740,00€ par an.Prix moyens des énergies indexés sur les années 2023, 2024 et 2025 (abonnement compris)
Contactez
Notre agence
Autour de ce bien :
Découvrez les écoles, hopitaux, commerces ... à proximité
- Bien
- 45.8142139
- 5.4038215
- /images/ggmap-marker.png
- click
-
Maison de villageMONTALIEU VERCIEU - 70 m²
































